“The villa balances shared life and personal retreat, where maybe the true design lies in crafting spaces that connect without compromising privacy, framed by light and landscape.”
Villa Schneeberg
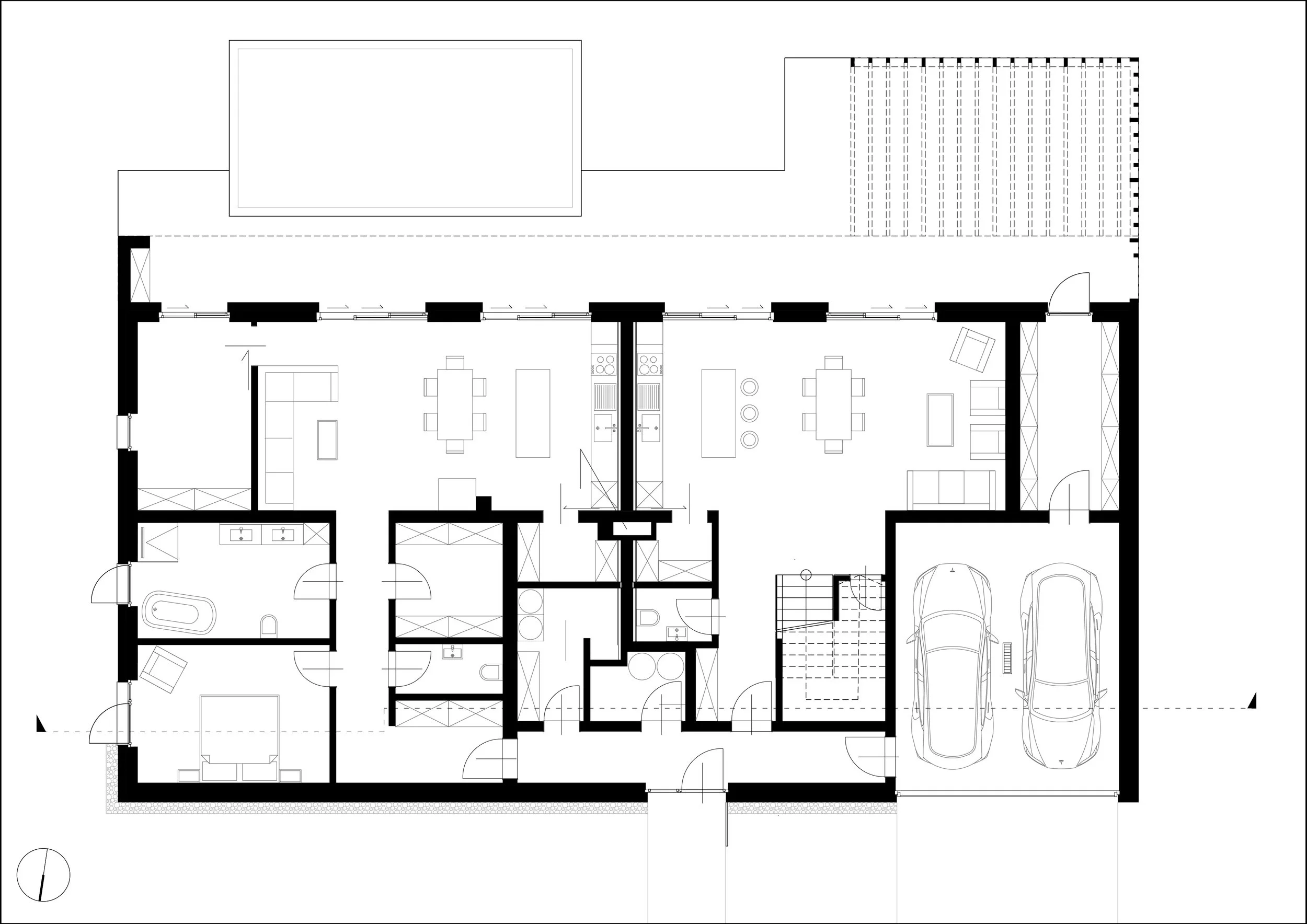
Nestled in the picturesque countryside of Austria, just beneath the towering peaks of the Schneeberg mountains, this two-generation villa strikes a harmonious balance between privacy and connection. Thoughtfully designed to accommodate a family wishing to share one roof while still cherishing individual space, the home combines intimacy with independence. Expansive south-facing windows flood the interiors with natural light and frame sweeping views of the untouched landscape, while a gracefully designed pergola by the pool invites moments of relaxation and togetherness. Surrounded by nature’s tranquility, the villa is both a private retreat and a welcoming gathering place for family life.
Location
Schneeberg, Austria
Year
2021
Client
Private
Status
Built
Project Architect
Csenge Lánszki

